Недвижимость / Квартира / Продам

    Описание:
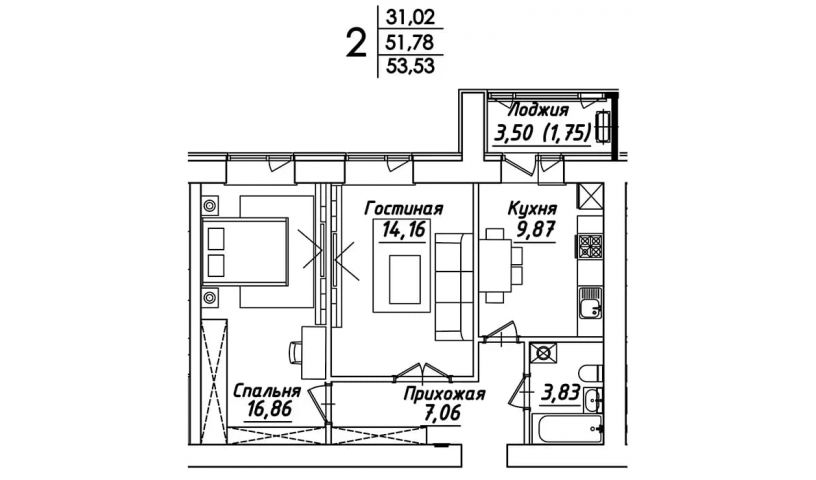
    НОВЫЙ Жилой Комплекс МАДРИД. Расположен в Есильском районе города Нур-Султан. Жилой Комплекс расположен в квадрате по улице Ч.Айтматова пересечением Е 164, СДАЧА 2022год 1-2квартал Преимущества: Закрытый двор Экологически чистый район Просторные квартиры Детские и спортивные площадки Развитая инфраструктура НОВЫЙ Жилой Комплекс Мадрид в Нур Султане это большой комплекс 12-этажный дом из кирпича класса комфорт. Высота потолков 3метра. Не ПРЕДУСМОТРЕН ПАРКИНГ. Большие витражные окна. Здание выполнено в современной стилистике и имеет большие витражные окна с панорамным видом на город. Презентабельный НОВЫЙ Жилой Комплекс МАДРИД находится в окружении всех необходимых объектов инфраструктуры. Здесь поблизости есть магазины, супермаркеты, заведения общественного питания, салоны и многое другое. Рядом с ЖК расположена остановка общественного транспорта. НОВЫЙ Жилой Комплекс находится на полностью огороженной территории, которая закрыта от посторонних. Во дворе оборудованы детская и спортивная площадка. В комплексе ПРЕДУСМОТРЕН надземный паркинг. Квартиры в комплексе Жилой Комплекс МАДРИД реализуются с черновой улучшенной отделки. . Условия приобретения квартир: 100% оплата; Рассрочка от застройщика - 50% первоначальный взнос - остаток равными долями ежемесячно или ежеквартально до ввода в эксплуатацию; Программа 7-20-25 - 20% первоначальный взнос оплачиваете застройщику-бронируете квартиру, после ввода в эксплуатацию дома оформляете ипотеку в любом банке под залог этой же квартиры; Ипотека через ЖССБ - 20% первоначальный взнос оплачиваете застройщику-бронируете квартиру, после ввода в эксплуатацию дома от 80% остаток оформляете через ЖССБ 50/50. Однокомнатные квартиры: от 36,68 кв.м до 43,01кв.м. Двухкомнатные от 52,41 кв.м до 63,25 кв.м. Трехкомнатные от 84,59кв.м до 88,91кв.м. 8-776-534-12-24, 8-775-807-04-30

    Пользователь: Компания

    Кол-во комнат: 2

    Площадь, кв.м: 53.53

    Тип дома: кирпичный

    Год постройки: 2021

    Этаж: 4

    Этажей в доме: 12

    Санузел: совмещенный

    Дополнительно:

    Адрес: Астана, Акмолинская область, Казахстан

    Оставьте заявку продавцу и он вам обязательно ответит

    Похожие объявления
    Expo Бульвар, бір бөлмелі пәтер
    25 000 000 ₸
    Астана, Казахстан
    08.05.2024, 00:55
    Продам,обмен
    5 300 000 ₸
    Зыряновск, Казахстан
    27.09.2023, 05:58
    Продаётся квартира
    29 000 000 ₸
    Атырау, Казахстан
    06.09.2023, 23:38
    3х комнатная квартира в доме комфорт класса 75м2
    18 750 000 ₸
    Каскелен, Казахстан
    14.08.2023, 18:05
    avatar
    Компания "Компания"
    Показать номер
    Все объявления

    Точный адрес

    Казахстан, Акмолинская область, Астана